Erlebnismühle - Museum
Im Erdgeschoss soll eine Ausstellung zum Betrieb der Mühle Förstgen entstehen. Mit Exponaten zum Müllerhandwerk, die sowohl aus der eigenen Mühle, aber auch aus anderen Mühlen kommen können, wollen wir unseren Gästen eines der wichtigsten und traditionsrichsten Handwerke der Region näher bringen. Fotos und historische Dokumente der Mühlenkunst vervollständigen diese Sammlung.

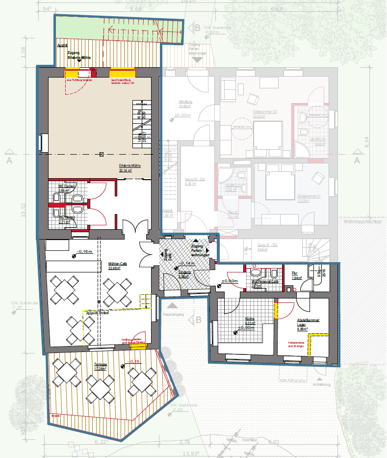
Darstellung: Westansicht der Wassermühle Förstgen, Architekturbüro Christian Weise, Görlitz
In der ersten Etage sollen für Umweltbildungstätigkeiten Arbeitsmöglichkeiten in Form eines Mehrzweckraumes geschaffen werden. Als Naturschutzstation "Östliche Oberlausitz" e.V. führen wir über 700 Umweltbldiungsveranstaltungen durch. Künftig kann die Mühle auch Zentrum für trinantionale Veranstaltungen werden (Feriencamps mit Übernachtung auf der angrenzenden Wiese, Projekttage mit Schulen, Etablieren von Freizeitgruppen mit Schwerpunkt Handwerk, Führungen durch die Mühle mit dem eigenen „Müller“ u.v.a.m.).
In diesem Teil unserer Mühle wird Besuchern, Touristen, Studenten und Schülern eine Vielzahl von Möglichkeiten geboten, sich für unsere gemeinsame Umwelt zu engagieren. Dazu gehören beispielsweise der Bau von Nistkästen, die Herstellung von Storchenhorsten, Anzucht/Werben/Pflanzung von Bäumen, Patenschaften für Baumpflanzungen sowie Müllberäumungen an und in Wäldern.
Als „LernBauernhof Sachsens“ können Projekte angeboten werden, die den Weg des Korns zum Brot zeigen und den Lern- und Schauacker mit einbeziehen. Die alte Getreidesorten werden mit Sicheln geerntet und zu Garben gebundnen. Unsere Ideen zur weiteren Nutzung der Erlebnismühle sind so vielfältig wie unser Bildungsangebot.
Mühlencafé
Im Erdgeschoss der alten Wassermühle stehen auf ca. 33 m² 12 Sitzplätze in einem kleinen Mühlencafé zur Verfügung. Das Areal des Cafés erweitert sich um das Außengelände einer Terrasse mit weiteren 17 m². Im großzügigen Außengelände kann ein Biergarten mit rustikalen Sitzmöglichkeiten unter den alten Apfelbäumen entstehen. Ebenso wird unter der alten Eiche eine umlaufende Sitzbank installiert.

Darstellung: Erdgeschoss der Wassermühle Förstgen, Architekturbüro Christian Weise, Görlitz
Im Mühlencafé möchten wir neben Kaffee und Kuchen auch kleine, teils selbst hergestellte Souvenirs anbieten, wie z.B. die Hirtentasche (Bezug zur Biotoppflegeschäferei der Naturschutzstation) mit Wanderkarte, einfache Korbwaren, Veranstaltungskalender, Heidehonig, ebenso sollte Wildwurst vom Jäger, Gallowayspezialitäten vom Biosphärenpartner Ladusch aus Kreba, Räucherfischsaalat vom Biokarpfenproduzierenden Teichwirt Ringpfeil, Brot der Bäckerei Gerber, aus dem Ort u.v.a.m angeboten werden.
Als langjährige Organisatioren der Naturmärkte im Biosphärenreservat und von zahlreichen Regionalbuffets sind wir als Naturschutzstation mit regionalen Erzeugern (Landwirte, Forstbetriebe, Teichwirte, Schäfer...), Vermarktern und Handwerkern sehr gut vernetzt. Wir freuen uns auf die Durchführung eines Mühlenmarktes und das Anbieten regionaler Produkte und Säfte sowie Spirituosen der angrenzenden Streuobstwiese.
Wir sehen unsere Mühle auch als Informationspunkt, an dem Besucher qualifizierte Informationen und Beratung über das Biosphärenreservat, seine Ziele, Aufgaben, Projekte, Hintergründe (MAB usw.), touristische Erschließung, seine Partner, weitergehende Angebote der Umweltbildung, sowie über Natur und Kultur der Oberlausitzer Heide- und Teichlandschaft und ihre naturtouristischen Ziele und Angebote und deren Erreichbarkeit erhalten können. Dazu gehören auch die Entgegennahme von Anmeldungen und Anfragen für Umweltbildungsveranstaltungen/Fachführungen; Weiterleitung der Anmeldungen und Anfragen an die zuständigen Mitarbeiter bzw. Umweltpädagogen.
Die zum Café gehörige Küche kann auch von den Freizeitgruppen oder an Projekttagen und bei Mitmachangeboten genutzt werden, um beispielsweise zu zeigen, wie man heimische Kräuter oder frische, regionale Produkte verwendet um generell gesunde Ernährung mit regionalen Produkten zu thematisieren (Slow Food).